WALLACE RESIDENCE - NEW CUSTOM HOME


CLIENT

WALLACE

GOOCHLAND, VA

SCOPE

  • SCHEMATIC DESIGN

  • DESIGN DEVELOPMENT

  • CONSTRUCTION DOCUMENTS

PROJECT NARATIVE

WE WERE ENGAGED TO DESIGN A CUSTOM BARNDOMINIUM RESIDENCE THAT FULLY EMBRACES ITS STUNNING LAKEFRONT SETTING. THE TWO-STORY FLOOR PLAN WAS THOUGHTFULLY COMPOSED FOR ENTERTAINING, WITH GENEROUS, LIGHT-FILLED SPACES THAT FLOW EFFORTLESSLY FROM ONE TO THE NEXT. AT THE HEART OF THE HOME, AN EXPANSIVE GREAT ROOM IS DEFINED BY A SOARING STONE FIREPLACE ON ONE SIDE AND A SCULPTURAL OPEN STAIR ON THE OTHER, CREATING A DRAMATIC YET INVITING GATHERING SPACE. THE ADJACENT KITCHEN AND DINING AREAS, ALONG WITH A GAME AND BAR AREA, REMAIN VISUALLY CONNECTED AND OPEN TO THE UPPER LEVEL, REINFORCING A SENSE OF VOLUME AND CONNECTION THROUGHOUT THE HOME.

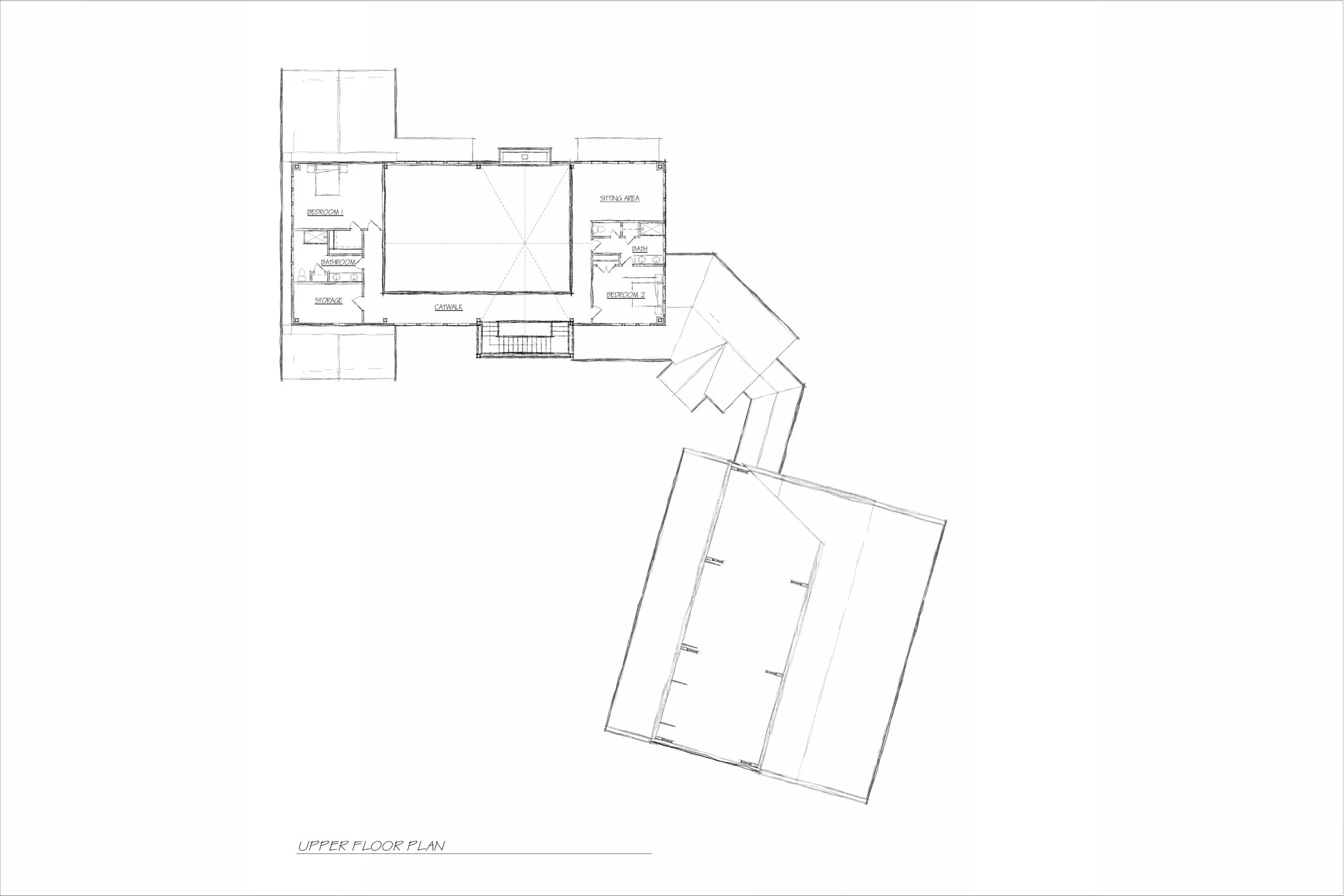
THE OPEN FLOOR PLAN ALSO ACCOMMODATES A PRIVATE OWNER’S SUITE, COMPLETE WITH A LUXURIOUS BATH, SPACIOUS WALK-IN CLOSET, AND DEDICATED OFFICE, PROVIDING A QUIET RETREAT WITHIN THE HOME. THE UPPER LEVEL FEATURES TWO ENSUITE BEDROOMS AND A COMFORTABLE SITTING AREA, ALL ORIENTED TO CAPTURE TRANQUIL VIEWS OF THE LAKE AND CREATE A RELAXED, RESORT-LIKE ATMOSPHERE FOR FAMILY AND GUESTS ALIKE.


PROJECT TEAM

CONTRACTOR

DEERFIELD HOMES, INC


Copyright © cadence Architecture, PC. All Rights Reserved.