VENEMEX, LLC - NEW OFFICE/ WAREHOUSE BUILDING


CLIENT

VENEMEX, LLC

RICHMOND, VA

SCOPE

  • SCHEMATIC DESIGN

  • DESIGN DEVELOPMENT

  • INTERIORS

  • CONSTRUCTION DOCUMENTS

PROJECT NARATIVE

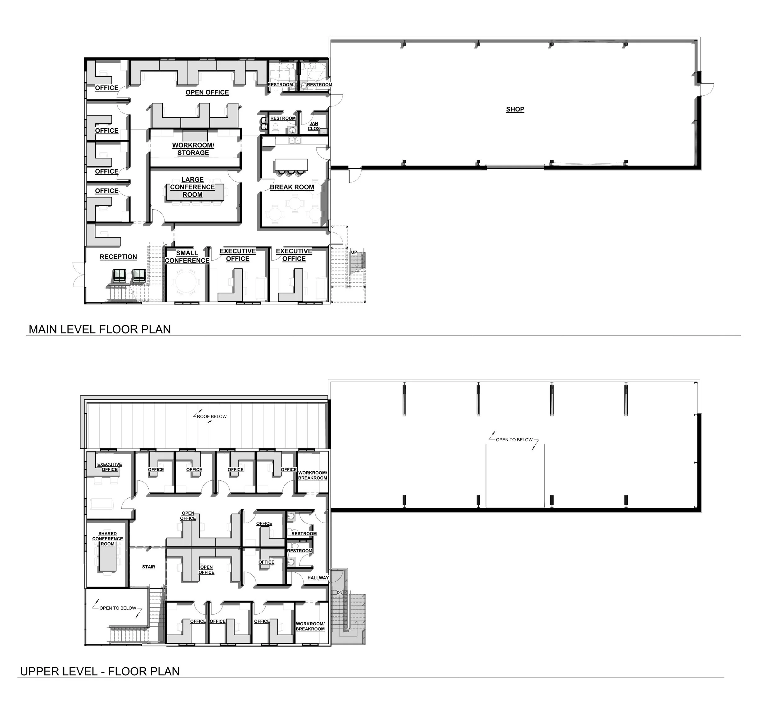
CADENCE ARCHITECTURE WAS ENGAGE TO HELP OUR CLIENT CREATE A NEW TWO-STORY OFFICE BUILDING ORGANIZED AROUND AN OPEN, DOUBLE-HEIGHT LOBBY DESIGNED TO SHOWCASE THE CLIENT’S WORK AND CREATE A STRONG SENSE OF ARRIVAL. THE MODERN OFFICE LAYOUT EMPHASIZES FLEXIBILITY AND COLLABORATION, WHILE A BREAK ROOM WITH FULLY OPERABLE WALL SYSTEMS OPENS DIRECTLY TO THE EXTERIOR, SUPPORTING SEAMLESS INDOOR–OUTDOOR EVENTS AND EXPANDED EMPLOYEE GATHERING OPPORTUNITIES.

PROJECT TEAM

DESIGN TEAM

CADENCE DESIGN - STRUCTURAL ENGINEERING

LU+S - MEP ENGINEERING

DEVELOPER

VENEMEX

CONTRACTOR


Copyright © cadence Architecture, PC. All Rights Reserved.