GEORGIAN ROW - NEW OFFICE BUILDING


CLIENT

DELTA CITATION DEVELOPER

MIDLOTHIAN, VA

SCOPE

  • SCHEMATIC DESIGN

  • DESIGN DEVELOPMENT

  • CONSTRUCTION DOCUMENTS

PROJECT NARATIVE

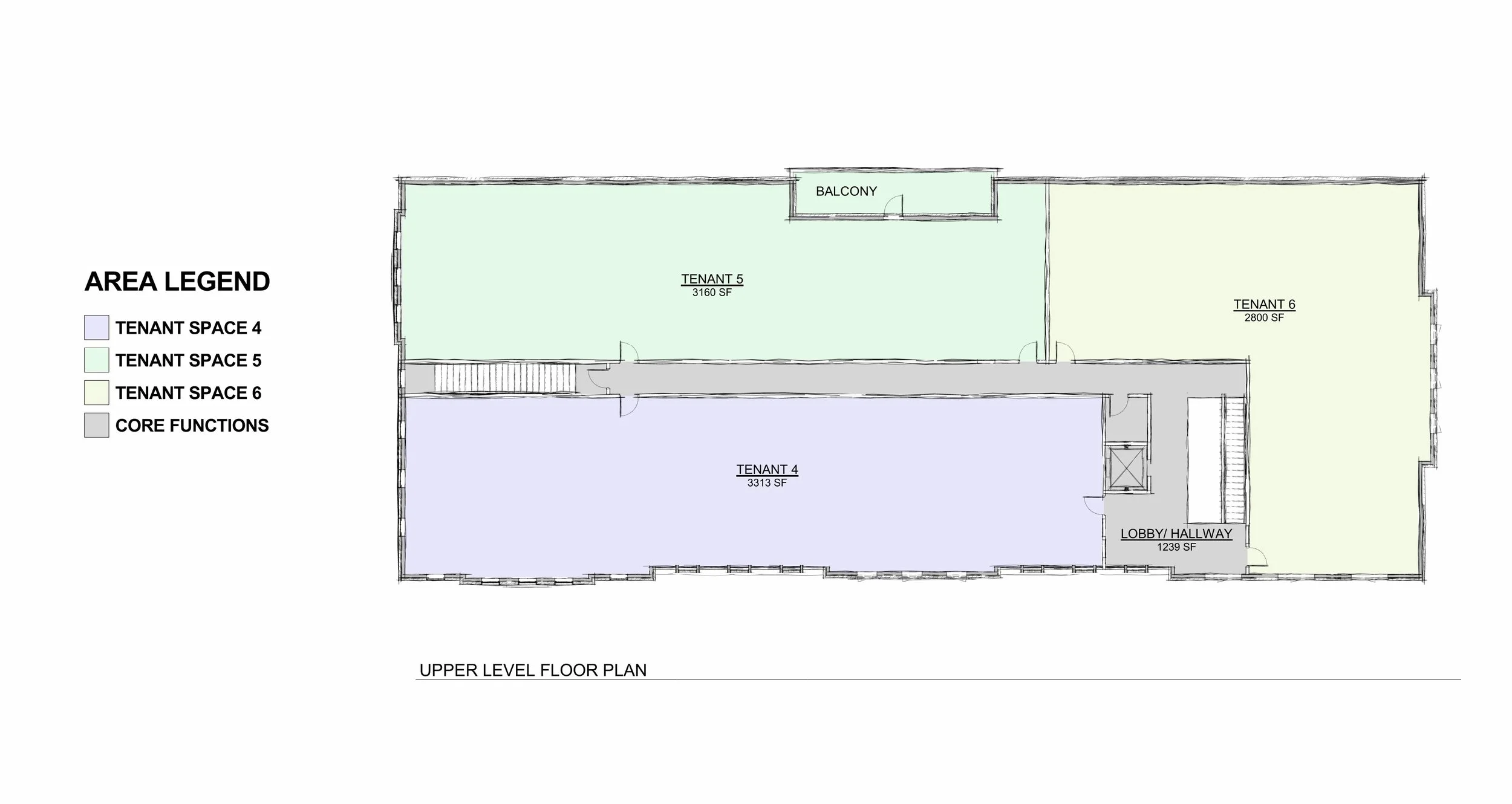
NEW TWO-STORY, 24,000 SF COMMERCIAL OFFICE BUILDING LOCATED IN THE VILLAGE AT SALISBURY IN CHESTERFIELD COUNTY, VIRGINIA. ROOTED IN WILLIAMSBURG-STYLE ARCHITECTURAL PRECEDENT AND CONSISTENT WITH THE CHARACTER OF THE EXISTING OFFICE PARK, THE BUILDING ACCOMMODATES FIVE DISTINCT TENANTS. THE MASSING IS CAREFULLY COMPOSED AND ARTICULATED THROUGH VARIED FAƇADE EXPRESSIONS TO MODULATE SCALE AND REDUCE PERCEIVED BULK, WHILE ESTABLISHING A CLEAR AND INDIVIDUAL IDENTITY FOR EACH TENANT. SITUATED ALONG THREE STREET FRONTAGES, THE BUILDING OCCUPIES AN ENTIRE BLOCK WITHIN THE PARK

THIS PROJECT IS CURRENTLY IN DESIGN

PROJECT TEAM

DESIGN TEAM

RDA CIVIL ENGINEERS

WESTWOOD - STRUCTURAL ENGINEERING

LU+S - MEP ENGINEERING

DEVELOPER

DELTA CITATION

CONTRACTOR


Copyright © cadence Architecture, PC. All Rights Reserved.